Skip to main

דבי רוח משיח | aCADemia training center Manager


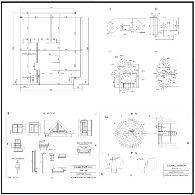
עוד לא שרטטת באוטוקאד? זה הזמן להתחיל

AutoCAD היא אחת התוכנות הוותיקות, המוכרות והחשובות ביותר בעולם השרטוט.
היא לא רק כלי – היא שפה מקצועית!
בכל משרד אדריכלים, חברת הנדסה או סטודיו לעיצוב- AutoCAD, היא חלק בלתי נפרד מהעבודה היומיומית.
היא מלווה אנשי מקצוע כבר עשרות שנים, וממשיכה להיות הסטנדרט בתעשייה, בלי תחרות אמיתית.
אין לה תחליף, ואם אתם עדיין לא שולטים בה, זה הזמן להצטרף.

דמיינו שאתם מקבלים תוכנית ואתם אלה שמבצעים את השינויים בעצמכם.
אתם יושבים מול המחשב, מוסיפים מידות, מעדכנים פרטים, מכינים את התוכנית להדפסה או לשליחה ללקוח – בלי להעביר את המשימה הלאה.
פותחים את AutoCAD – ומבצעים את העבודה בדיוק ובמהירות.

זו לא רק יכולת טכנית – זו עצמאות מקצועית!

אז אם אתם עוסקים בתכנון, שרטוט, אדריכלות או הנדסה – או פשוט רוצים לרכוש מיומנות מבוקשת בשוק העבודה – קורס AutoCAD בסיסי מבית תיםקאד הוא בדיוק המקום להתחיל בו.

AutoCAD היא התוכנה המובילה בעולם לשרטוט דו-ממדי, והיא משמשת מיליוני אנשי מקצוע ליצירת שרטוטים מדויקים, ברורים ויעילים – במשרד, בבית או בשטח.

הקורס מועבר בפורמט מקוון באמצעות ZOOM ,כך שתוכלו ללמוד מכל מקום ובזמן שנוח לכם.
הקורס כולל חוברת הדרכה ייעודית ותרגולים מעשיים מתוך דיסציפלינות שונות – אדריכלות, הנדסה אזרחית, מכונות ועוד – כדי להבטיח שתצאו עם כלים אמיתיים לעבודה.

 

מה כולל הקורס?
• הכרת ממשק המשתמש של AutoCAD
• שימוש בפקודות שרטוט דו-ממדיות (קווים, קווים משוכללים, קווי עזר, מעגלים, קשתות, אליפסות, מצולעים.)
• הכרת פקודות תצוגה ושיטות לבחירת אובייקטים.
• שימוש בפקודות עריכה, העתקה, הזזה, סיבוב, מתיחה, הארכה, גזירה, עיגול פינות, קיטום, שכפול ועוד.
• יצירה,הגדרה ובקרת שכבות ושרטוט אובייקטים בשכבות שונות.
• יצירה ושתילת בלוקים בשרטוט.
• יצירה ועבודה עם אטריביוטים-שות מידע בבלוק.
• יצירת ושתילת בלוקים דינמיים
• מילוי שטחים בקווקוו ובצבעים.
• הכנת סגנונות מלל וכתיבת מלל בלועזית ובעברית.
• תשאול מדידה (מדידות אורך, זווית וחישובי שטחים.)
• הכנת סגנון למתן מידות ומתן מידות מסוגים שונים.
• שימוש בקבצים מצורפים כשכבות רקע.
• הכנת שרטוט להדפסה במרחב הנייר, הפקת גיליונות הדפסה.
• הדפסת שרטוט ויצירת קבצי PLT, DWF PDF.
• המרת קבצי PDF לפורמט DWG , שליחת קבצי שרטוט בדוא"ל ושמירת קבצי DWG בענן.

למה כדאי להצטרף?
• לימודים אונליין – נוח ללמוד מהמשרד או מהבית
• מתאים למהנדסים, אדריכלים, הנדסאים ובעלי מקצוע טכניים
• אין צורך בידע קודם – רק רצון ללמוד ולהתפתח
• הקורס כולל 60 שעות לימוד מלאות (20 מפגשים)
• בסיום הקורס תוענקנה תעודות סיום מטעם תיםקאד, מרכז ההדרכה המורשה של Autodesk ומטעמה של Autodesk העולמית.


קהל יעד
• מהנדסים, אדריכלים, הנדסאים ובעלי מקצועות טכניים
• משתמשים בתוכנות AutoCAD / AutoCAD LT בסביבת Windows 
• כל מי שמעוניין לרכוש בסיס חזק לעבודה עם AutoCAD, גם ללא ניסיון קודם


מילה אישית

כמנהלת מרכז ההדרכה המורשה של Autodesk בתיםקאד, אני פוגשת מדי יום אנשי מקצוע שמחפשים דרך להיכנס לעולם השרטוט בצורה מקצועית, מדויקת ונגישה.
הקורס הזה נבנה מתוך ניסיון אמיתי בשטח ומתוך הבנה עמוקה של הצרכים שלכם – והוא לא רק לימוד תוכנה, אלא הזדמנות לצמיחה מקצועית, לרכישת ביטחון בעבודה עם כלים מתקדמים, ולפתיחת דלתות חדשות בקריירה שלכם.

מחכה לכם בכיתה הווירטואלית.

לשאלות נוספות או מידע נוסף, אתם מוזמנים ליצור קשר עם צוות ההדרכה שלנו בכתובת: 
[email protected] או בטלפון 03-9267957.

שלכם,
דבי רוח משיח
מנהלת מרכז הדרכה, aCADemia מבית תיםקאד

דילוג לתוכן