דפנה דובין ליטמנוביץ' | AEC Revit Technical support Expert
בטיפ האחרון שלי "גמרים בקירות רוויט", התייחסתי לשתי האפשרויות של מידול קיר עם שכבות וללא שכבות גמר:
1. קיר אחד המכיל מספר שכבות
2. מספר קירות מפוצלים (קיר בטון/בלוק וקיר גמר) אשר ממודלים במקביל האחר לשני
במידה ולצורך השרטוט שלכם תרצו למדל לפי מספר קירות מפוצלים (אפשרות 2), הרי שהחל מגרסת REVIT 2026 ניתן להוסיף גמרים בקירות לפי חדרים Rooms – זהו שדרוג משמעותי שמאוד יכול להקל ולקצר תהליכים.
אז איך זה עובד?
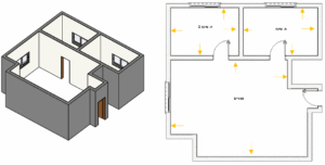
ראשית, יש לוודא שישנם חדרים Room בשרטוט.
יצירת חדר תעשה בבחירת Room (תפריט Architecture) והצבתו בשרטוט.


שנית, בעת יצירת קיר גמר חדש, נבחר באפשרות החדשה של Place By Room ונסמן את החדר שנרצה.
שימו לב, מומלץ לבחור את אפשרות Auto Join & Lock (הסבר מלא בטיפ "גמרים בקירות רוויט").

בחירת חדרים בהם יתווספו קירות גמר
תוצר סופי של שרטוט עם קירות גמר
כפי שניתן לראות, קירות הגמר נוצרו בלחיצה מהירה וכן נוצרו סביב פתחי החלונות והדלתות באופן אוטומטי.

נתראה בטיפ הבא!
דפנה דובין-ליטמנוביץ'
